Bodega en Renta de 2,642m2 en Parque IBP 300

  • $ 343,600 MXN Renta
PARQUE IBC 300

Ficha T茅cnica de la propiedad

Descargar

Descripci贸n general

ID de propiedad: 13659
  • Bodega industrial
  • Tipo de propiedad
  • 5
  • Medio Ba帽o
  • 6
  • Garaje
  • 2,916.00
  • m虏 Terreno
  • 2,642.00
  • m虏 Construidos

Descripci贸n

馃敼 Bodega en Renta de 2,642m2 en  Parque IBP 300, Santa Catarina, NL

 

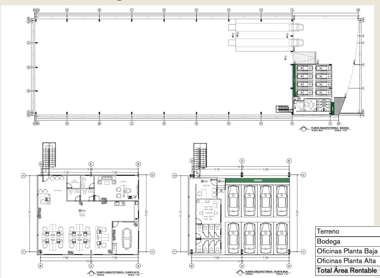
  • 馃彮 脕rea de nave: 2,390.70 m².
  • 馃彚 脕rea de oficinas: 251.78 m² (57.93 m² en planta baja + 193.85 m² en planta alta).
  • 馃搻 脕rea rentable total: 2,642.48 m².
  • 馃寧 Terreno: 2,916.39 m².

Te presentamos una excelente opci贸n de bodega en renta dentro de uno de los parques industriales m谩s consolidados y de mayor demanda en Santa Catarina. Ideal para empresas nacionales e internacionales que buscan calidad, ubicaci贸n estrat茅gica y eficiencia operativa.

• 2 Andenes de carga para tr谩iler equipado con rampa niveladora de

carga mec谩nica manual de 30,000 lbs.

• 1 anden con acceso vehicular a la nave (drive-in)

• Fachada de bodega con l谩mina multipanel en dos tonos y espesor de 2”.

• Estructura de acero de acuerdo a dise帽o estructural y cubierta con l谩mina galvanizada calibre 24 tipo KR-18 y un aislamiento t茅rmico a base de colchoneta de fibra de vidrio con un espesor de 3”.

• 4.5% en iluminaci贸n natural con l谩minas trasl煤cidas tipo poliacr铆licas.

• Cumbrera, bajantes y canalones pluviales a base de l谩mina

galvanizada calibre 22.

• Tablero el茅ctrico de 42 espacios marca Square-D.

• Firme de concreto reforzado con acero, acabado pulido en el interior de bodega y 谩rea de andenes con un espesor de 15 cent铆metros resistencia 250 kg/cm2.

• Firme de concreto acabado semipulido en 谩rea de estacionamiento vehicular con un espesor de 10 cent铆metros resistencia 200 kg/cm2 armado con acero estructural.

• Altura m铆nima de 9.00 metros en el lado m谩s bajo de la nave.

• 1 cortina met谩lica con medidas de 4.50 x 5.00 m谩s 1 de 4.50 x 6.20

aproximadamente

• Cajones de estacionamiento con topes de neopreno para capacidad de 8 veh铆culos.

• Iluminaci贸n interior a base de campanas LED.

• Iluminaci贸n exterior de acento para dise帽o de jardiner铆a.

 

Direcci贸n

Google Maps
  • Direcci贸n PARQUE IBC 300
  • Localidad/Municipio Santa Catarina
  • Estado Nuevo Le贸n
  • C贸digo Postal 66368
  • Colonia Rinc贸n Del Poniente
  • Pa铆s Mexico

Detalles

Actualizado en 29 Sep. 2025 a 03:59 pm
  • ID de propiedad: 13659
  • Clave interna: 10
  • Precio Renta: $ 343,600 MXN
  • Tama帽o de propiedad: 2,916.00 m虏
  • Estacionamiento: 6
  • Tipo de propiedad: Bodega industrial
  • Estado de la propiedad: Disponible

Informaci贸n de contacto

Ver enlace de publicaciones

1 Comentario

(4 fuera de 5)
Ordenar por:
Escribe una rese帽a
  • thumb

    Lorem Ipsum is simply dummy

    Lorem Ipsum is simply dummy text of the printing and typesetting industry. Lorem Ipsum has been the industry鈥檚 standard dummy text ever since the 1500s, when an unknown printer took a galley of type and scrambled it to make a type specimen book.

Escribe una rese帽a